オール電化物件・ネットWIFI無料です☆
この画面のスクリーンショットを撮って
店舗でお見せください
店舗でお見せください
問合せコード568-0603
| 物件読み | ブロートハイム | ||
|---|---|---|---|
| 物件名 | Brot heim(ブロートハイム) | ||
| 所在地 | 鹿児島市谷山中央4丁目 | ||
| 家賃 | 47,000円 | ||
| 共益費他 | 3,000円 | ||
| 敷金/礼金 | なし(別途保証契約が必要)/なし | ||
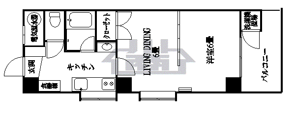
| 間取り | 2K | 築年数 | 築25年 |
| 間取 | 洋6/洋6/K2.5/ステージング/ランドリールーム | ||
| 物件読み | ブロートハイム | ||
|---|---|---|---|
| 物件名 | Brot heim(ブロートハイム) | ||
| 所在地 | 鹿児島市谷山中央4丁目 | ||
| 階層 | 8階建の6階部分 | ||
| 家賃 | 47,000円 | ||
| 共益費他 | 3,000円 | ||
| 敷金 | なし(別途保証契約が必要) | ||
| 礼金 | なし | ||
| 間取り | 2K | 築年数 | 築25年 |
| 間取内容 | 洋6/洋6/K2.5/ステージング/ランドリールーム | ||
初期費用の概算
| 家賃 | 47,000円 |
|---|---|
| 共益費 | 3,000円 |
| 駐車料金 | 7,700円 |
| 敷金 | 0円 |
| 礼金 | 0円 |
| 家賃保証 | 20,000円 |
| 火災保険・初月分(月払い) | 1,050円 |
| ネット初期費用 | 0円 |
| 仲介手数料 | 59,400円 |
| 鍵交換料 | 22,000円 |
| 消火用具 | 5,500円 |
| サニタリーサービス | 30,800円 |
| 合計 | 196,450円 |
- ※別途保証会社費用など追加費用がかかる場合がございます。詳しくはお問い合わせください。
- ※火災保険の保険金額について・・・家財保障は350万円まで、修理費用保障は250万円まで、入居者賠償責任保障・個人賠償責任保障は2,000万円までの契約です。保険料の支払い方法は月払いとなっております。
- ※家賃保証料は、初回保証料20,000円と月額保証料(賃料合計の1.5%)が必要です。学生契約の場合は、初回10,000円のみとなります。
- ※サニタリーサービス・消火用具の金額は申込数などにより変動します。
バストイレ別で広々としたお部屋です。ネット無料WIFI無料です!
家賃・物件概要
設備情報
| 物件名 | Brot heim(ブロートハイム) |
|---|---|
| 物件読み | ブロートハイム |
| 所在地 | 鹿児島市谷山中央4丁目 |
| 家賃 | 47,000円 |
| 共益費他 | 3,000円 |
| 敷金 | なし(別途保証契約が必要) | 礼金 | なし |
| 水道料 | 別途、実費となります |
| 階層 | 8階建の6階部分 |
| 面積 | 34.9㎡ |
| 主要採光面 | 東向き |
| 駐車場 | 7,700円 (消費税込)・敷地外・平地(屋根なし) |
| 駐輪場 | あり(※1) |
| 種別 | マンション |
| 構造 | 鉄筋コンクリート造 |
| エレベータ | あり |
| セキュリティ | オートロックあり |
| ガス | - |
| 築年 | 築25年 |
| 竣工 | 平成12年3月 |
| 建物のポイント | 始発駅、バス停徒歩3分以内、耐火構造、外壁タイル張り、エレベーター、宅配ボックス、敷地内ごみ置き場、駐輪場、オートロック、当社管理物件 |
| 交通 | 鹿児島交通 本町 徒歩1分 鹿児島市電1系統 谷山電停 徒歩16分 JR最寄駅:谷山駅まで 880m |
| 現況 | 空室 |
| 学校区 距離 |
谷山小学校まで400m 谷山中学校まで1400m |
| 建物に関する情報 | 鉄筋コンクリート、エレベーター、駐輪場(※1)、バス停近し(徒歩1分) |
|---|---|
| 室内に関する情報 | 角部屋、IHクッキングヒーター、冷蔵庫付き、室内洗濯機置場あり、照明器具付き、家電付き(冷蔵庫、洗濯機、電子レンジ、掃除機、照明(中古))、クロゼット |
| 浴室・トイレについて | 風呂トイレ別、洗浄機能付き温水便座、シャンプードレッサー付き洗面台 |
| セキュリティ/宅配BOX/郵便受種類等の有無 | オートロック、宅配ボックス、TVモニター付きインターフォン、ダイヤル式郵便ポスト |
| エアコンの有無 | エアコンあり |
| ガス・暖房について | 給湯器:電気温水器 暖房:エアコン |
| BS/CSアンテナ設備の有無 | BS/CS受信のためのアンテナなし |
| インターネット設備について | インターネット月額費用は「無料」です (有線LAN・Wi-Fi両用方式) |
| ペット飼育について | ペット飼育はできません(不可) |
| その他の情報 | 24時間管理、即入居可 |
※1:駐輪場は、台数やサイズに制限がございますので、駐輪を希望する場合は事前にお問い合わせ下さい。なお、バイクの駐車を希望なさる場合はバイクの大小にかかわらずお問い合わせ下さい。
近隣の施設
- 鹿児島市役所谷山支所まで 徒歩4分(270m)
- サンキュー和田店まで 徒歩13分(970m)
- 鹿児島南郵便局まで 徒歩4分(250m)
- ニシムタNsCITY谷山店まで 徒歩12分(900m)
- ローソン鹿児島谷山本町店まで 徒歩2分(160m)
- 谷山小学校まで 徒歩5分(400m)
- 谷山中学校まで 徒歩18分(1400m)
火災保険・手数料・その他
| 火災保険 | 入居者様の家財道具に対する家財補償や、保険事故を対象とする賠償責任保証・修理費用保証等、万が一に備えるたために火災保険へご加入いただく必要がございます。その際の火災保険料は入居者様ご負担となります。(※原則、保険料は月払いとなります) |
|---|---|
| 仲介手数料 | ご契約に当たっては仲介手数料が必要となります。 仲介手数料は(家賃 + 駐車料金)の1カ月分+消費税となっております。 |
| 契約更新事務手数料について | 契約期間は原則2年間です。2年毎に契約更新事務手数料22,000円(税込)が必要となります。 ※別途、マイルームクラブプレミアム(月額990円)加入で更新事務手数料は免除されます。 |
| 付帯商品について | サニタリー商材15,000円(税別)~、消火剤5,000円(税別)~ |
| 耐震診断について | 本建物は昭和56年6月1日以降に新築工事に着手されたものであるため、説明を省略させていただきます。 |
※[取引態様:仲介] 契約初期費用は、敷金・礼金・前家賃の他に、仲介手数料・火災保険料・鍵交換料・家賃保証料などが必要です。
家賃保証料は、初回保証料20,000円と月額保証料(賃料合計の1.5%)が必要です。学生契約の場合は、初回10,000円のみとなります。連帯保証人は基本不要ですが、申込内容・物件により必要になる場合があります。
※[学生の方へ] 学生さんの契約(新入生並びに在校生、卒業生予定含む)の場合は仲介手数料の割引がございます。提携校の学生さんはさらに特別割引ありますので、詳しくはスタッフまでお問い合わせください。
家賃保証料は、初回保証料20,000円と月額保証料(賃料合計の1.5%)が必要です。学生契約の場合は、初回10,000円のみとなります。連帯保証人は基本不要ですが、申込内容・物件により必要になる場合があります。
※[学生の方へ] 学生さんの契約(新入生並びに在校生、卒業生予定含む)の場合は仲介手数料の割引がございます。提携校の学生さんはさらに特別割引ありますので、詳しくはスタッフまでお問い合わせください。
あなたへのおすすめ
下記の物件もよく見られています














担当者より
2022年2月外壁塗装と玄関ドア交換☆徒歩3分以内に市役所、郵便局、バス停、銀行、コンビニがある便利な立地です。