床、壁がおしゃれでそのまま使用できると思います。アーケード内
問合せコード1483-1FBF
| 物件名 | 田中ビル(東千石) | ||
|---|---|---|---|
| 所在地 | 鹿児島市東千石町 | ||
| 家賃 | 385,000円 | ||
| 共益費他 | 不要 | ||
| 敷金/礼金 | 家賃の3ヶ月分/なし | ||
| 間取り | テナント | 築年数 | 築65年 |
| 用途 | 店舗 | ||
| 物件名 | 田中ビル(東千石) | ||
|---|---|---|---|
| 所在地 | 鹿児島市東千石町 | ||
| 家賃 | 385,000円 | ||
| 共益費他 | 不要 | ||
| 敷金/礼金 | 家賃の3ヶ月分/なし | ||
| 間取り | テナント | 築年数 | 築65年 |
| 用途 | 店舗 | ||
照国表参道、通り沿い
家賃・物件概要
設備情報
| 物件名 | 田中ビル(東千石) |
|---|---|
| 所在地 | 鹿児島市東千石町 |
| 家賃 | 385,000円 |
| 共益費他 | 不要 |
| 敷金/礼金 | 家賃の3ヶ月分/なし |
| 水道料 | 別途、実費となります |
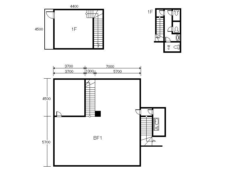
| 階層 | 3階建の地下1階 |
| 面積 | 141.8㎡ |
| 主要採光面 | 東向き |
| 駐車場 | なし |
| 駐輪場 | なし |
| 種別 | 事業用 |
| 構造 | 鉄筋コンクリート造 |
| エレベータ | なし |
| 業種 | 店舗 |
| 飲食店への用途 | 可 |
| その他用途可能な業種 | 事務所、物販店舗、倉庫、トランクルーム、美容院、学習塾、飲食店、エステ、病院 |
| 築年 | 築65年 |
| 竣工 | 昭和35年3月 |
| 建物のポイント | 2沿線利用可、駅徒歩4分以内、バス停徒歩3分以内、耐火構造、当社管理物件 |
| 交通 | 市営バス 中央公園 徒歩2分 鹿児島市電2系統 天文館通電停 徒歩4分 JR鹿児島本線 鹿児島中央 徒歩23分 |
| 現況 | 空室 |
| 建物情報 | 鉄筋コンクリート、電停近し、バス停近し |
|---|---|
| 室内情報 | 角部屋、コンロありません |
| 給湯室 | 共用 |
| トイレ | 専用トイレ |
| 照明器具 | あり |
| フロア | |
| 袖看板 | |
| 浴室 | 浴室ありません、洗面台ありません |
| セキュリティ/宅配BOX/郵便受種類の有無 | ダイヤル式郵便ポスト |
| エアコン | ありません |
| ガス | ガス:ありません |
| BS/CSアンテナ・インターネット | BS/CS受信のためのアンテナなし お申込み・利用料が必要となります |
| その他 | 24時間管理 |
近隣の施設
- 中央公園まで 徒歩1分(70m)
- 山形屋まで 徒歩3分(220m)
- マルヤガーデンズまで 徒歩4分(300m)
- キャパルボまで 徒歩5分(400m)
- ファミリーマートまで 徒歩2分(145m)
その他
※[取引態様:仲介] 契約初期費用は、敷金・礼金・前家賃の他に、仲介手数料・火災保険料・鍵交換料・家賃保証料などが必要です。
家賃保証料は、賃料合計の100%が必要です。
家賃保証料は、賃料合計の100%が必要です。
あなたへのおすすめ
下記の物件もよく見られています














担当者より
居抜き、飲食店。退去前ですが内覧可能です(事前確認必要)