2階ワンフロア75坪は魅力です天井高3mで開放感あります。
問合せコード25297-002F
| 物件名 | 騎射場ダイヤモンドビル | ||
|---|---|---|---|
| 所在地 | 鹿児島市下荒田 | ||
| 家賃 | 550,000円 | ||
| 共益費他 | 不要 | ||
| 敷金/礼金 | 家賃の6ヶ月分/なし | ||
| 間取り | テナント | 築年数 | 築31年 |
| 用途 | 事務所 | ||
| 物件名 | 騎射場ダイヤモンドビル | ||
|---|---|---|---|
| 所在地 | 鹿児島市下荒田 | ||
| 家賃 | 550,000円 | ||
| 共益費他 | 不要 | ||
| 敷金/礼金 | 家賃の6ヶ月分/なし | ||
| 間取り | テナント | 築年数 | 築31年 |
| 用途 | 事務所 | ||
きしゃば電停からの看板効果あります。
家賃・物件概要
設備情報
| 物件名 | 騎射場ダイヤモンドビル |
|---|---|
| 所在地 | 鹿児島市下荒田 |
| 家賃 | 550,000円 |
| 共益費他 | 不要 |
| 敷金/礼金 | 家賃の6ヶ月分/なし |
| 水道料 | 別途、実費となります |
| 階層 | 7階建の2階部分 |
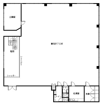
| 面積 | 248.0㎡ |
| 主要採光面 | 西向き |
| 駐車場 | なし |
| 駐輪場 | あり |
| 種別 | マンション |
| 構造 | 鉄筋コンクリート造 |
| エレベータ | あり |
| 業種 | 事務所 |
| 飲食店への用途 | 不可 |
| その他用途可能な業種 | 物販店舗、美容院、学習塾、エステ、病院 |
| 築年 | 築31年 |
| 竣工 | 平成6年10月 |
| 建物のポイント | 2沿線利用可、バス2路線、駅徒歩2分以内、バス停徒歩3分以内、耐火構造、外壁タイル張り、エレベーター、敷地内ごみ置き場、駐輪場、オートロック、当社管理物件 |
| 交通 | 鹿児島市電1系統 騎射場電停 徒歩2分 市営バス 騎射場 徒歩2分 JR指宿枕崎線 郡元 徒歩18分 |
| 現況 | 空室 |
| 建物情報 | 鉄筋コンクリート、エレベーター、駐輪場、電停近し(徒歩2分)、バス停近し |
|---|---|
| 室内情報 | 角部屋、専用キッチン、コンロありません、照明器具付き |
| 給湯室 | 専用 |
| トイレ | 専用トイレ |
| 照明器具 | あり |
| フロア | |
| 袖看板 | あり |
| 浴室 | 浴室ありません、洗面台ありません |
| セキュリティ/宅配BOX/郵便受種類の有無 | オートロック、ダイヤル式郵便ポスト |
| エアコン | あり |
| ガス | ガス:あり ガス種別:都市ガス |
| BS/CSアンテナ・インターネット | BS/CS受信のためのアンテナなし お申込み・利用料が必要となります |
| その他 | 24時間管理 |
近隣の施設
- 鹿児島県庁まで 徒歩15分(1200m)
- 米盛病院まで 徒歩17分(1300m)
- 鹿児島大学まで 徒歩11分(870m)
- スーパータイヨー騎射場店まで 徒歩1分(50m)
- ファミリーマートまで 徒歩3分(220m)
その他
※[取引態様:仲介] 契約初期費用は、敷金・礼金・前家賃の他に、仲介手数料・火災保険料・鍵交換料・家賃保証料などが必要です。
家賃保証料は、賃料合計の100%が必要です。
家賃保証料は、賃料合計の100%が必要です。
あなたへのおすすめ
下記の物件もよく見られています












担当者より
騎射場電車通りから視認性も良く集客が期待できます。