対面式のキッチンで会話も弾みますね!エアコンあります♪
この画面のスクリーンショットを撮って
店舗でお見せください
店舗でお見せください
問合せコード27591-0101
| 物件読み | ドリーム・S | ||
|---|---|---|---|
| 物件名 | ドリーム・S | ||
| 所在地 | 鹿児島市坂之上1丁目 | ||
| 家賃 | 61,000円 | ||
| 共益費他 | 不要 | ||
| 敷金/礼金 | なし(別途保証契約が必要)/なし | ||
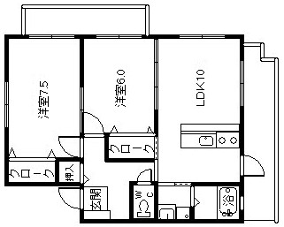
| 間取り | 2LDK | 築年数 | 築17年 |
| 間取 | 洋6/洋7.5/LDK10/縦列駐車場 | ||
| 物件読み | ドリーム・S | ||
|---|---|---|---|
| 物件名 | ドリーム・S | ||
| 所在地 | 鹿児島市坂之上1丁目 | ||
| 階層 | 2階建の1階部分 | ||
| 家賃 | 61,000円 | ||
| 共益費他 | 不要 | ||
| 敷金 | なし(別途保証契約が必要) | ||
| 礼金 | なし | ||
| 間取り | 2LDK | 築年数 | 築17年 |
| 間取内容 | 洋6/洋7.5/LDK10/縦列駐車場 | ||
初期費用の概算
| 家賃 | 61,000円 |
|---|---|
| 駐車料金 | 4,000円 |
| 駐車料金(2台目) | 0円 |
| 敷金 | 0円 |
| 礼金 | 0円 |
| 家賃保証 | 20,000円 |
| 火災保険・初月分(月払い) | 1,150円 |
| 仲介手数料 | 71,500円 |
| 鍵交換料 | 0円 |
| 消火用具 | 5,500円 |
| サニタリーサービス | 30,800円 |
| 合計 | 193,950円 |
- ※別途保証会社費用など追加費用がかかる場合がございます。詳しくはお問い合わせください。
- ※火災保険の保険金額について・・・家財保障は500万円まで、修理費用保障は250万円まで、入居者賠償責任保障・個人賠償責任保障は2,000万円までの契約です。保険料の支払い方法は月払いとなっております。
- ※家賃保証料は、初回保証料20,000円と月額保証料(賃料合計の1.5%)が必要です。学生契約の場合は、初回10,000円のみとなります。
- ※インターネット設備はありません。(別途、お申込み・利用料が必要です。)
- ※サニタリーサービス・消火用具の金額は申込数などにより変動します。
追い炊き給湯や温水洗浄便座、来客を確認できるTVモニターフォンなど設備充実!室内物干しもあります♪眺望・風通し◎
家賃・物件概要
設備情報
| 物件名 | ドリーム・S |
|---|---|
| 物件読み | ドリーム・S |
| 所在地 | 鹿児島市坂之上1丁目 |
| 家賃 | 61,000円 |
| 共益費他 | 不要 |
| 敷金 | なし(別途保証契約が必要) | 礼金 | なし |
| 水道料 | 別途、実費となります |
| 階層 | 2階建の1階部分 |
| 面積 | 60.2㎡ |
| 主要採光面 | 東向き |
| 駐車場 | 4,000円 ・敷地内・平地(屋根なし)・普通車と軽限定 |
| 〃 2台目 | 駐車場2台目あり(無料)・1台目と縦列 |
| 駐輪場 | なし |
| 種別 | マンション |
| 構造 | 鉄筋コンクリート造 |
| ガス | プロパンガス(コーアガス 南) |
| 築年 | 築17年 |
| 竣工 | 平成20年2月 |
| 建物のポイント | 駅徒歩6分以内、バス停徒歩3分以内、耐火構造、当社管理物件 |
| 交通 | 鹿児島交通 坂之上 徒歩3分 JR指宿枕崎線 坂之上駅 徒歩6分 JR最寄駅:坂之上駅まで 400m |
| 現況 | 空室 |
| 学校区 距離 |
和田小学校まで1381m 和田中学校まで976m |
| 建物に関する情報 | 鉄筋コンクリート、JR駅近し(10分以内)、バス停近し(徒歩3分) |
|---|---|
| 室内に関する情報 | 角部屋、室内洗濯機置場あり、室内物干あり、シューズボックス |
| 浴室・トイレについて | 風呂トイレ別、追焚き機能あり、洗浄機能付き温水便座、シャンプードレッサー付き洗面台 |
| セキュリティ/宅配BOX/郵便受種類等の有無 | TVモニター付きインターフォン、郵便ポストあり |
| エアコンの有無 | エアコンあり |
| ガス・暖房について | 給湯器:ガス給湯器 暖房:エアコン ガス種別:プロパンガス |
| BS/CSアンテナ設備の有無 | BS/CS受信のためのアンテナなし |
| インターネット設備について | 無料設備無し インターネット利用には、別途、お申込み、調査、工事が必要です。 ※調査結果によっては、契約できない場合がございます。 |
| ペット飼育について | ペット飼育はできません(不可) |
| その他の情報 | 24時間管理 |
近隣の施設
- 坂之上郵便局まで 徒歩4分(270m)
- ほっともっと坂之上店まで 徒歩4分(300m)
- 東前ちびっこ広場まで 徒歩2分(90m)
- ドラッグイレブン坂之上店まで 徒歩9分(700m)
- ファミリーマートまで 徒歩9分(700m)
- 和田小学校まで 徒歩18分(1381m)
- 和田中学校まで 徒歩13分(976m)
火災保険・手数料・その他
| 火災保険 | 入居者様の家財道具に対する家財補償や、保険事故を対象とする賠償責任保証・修理費用保証等、万が一に備えるたために火災保険へご加入いただく必要がございます。その際の火災保険料は入居者様ご負担となります。(※原則、保険料は月払いとなります) |
|---|---|
| 仲介手数料 | ご契約に当たっては仲介手数料が必要となります。 仲介手数料は(家賃 + 駐車料金)の1カ月分+消費税となっております。 |
| 契約更新事務手数料について | 契約期間は原則2年間です。2年毎に契約更新事務手数料22,000円(税込)が必要となります。 ※別途、マイルームクラブプレミアム(月額990円)加入で更新事務手数料は免除されます。 |
| 付帯商品について | サニタリー商材15,000円(税別)~、消火剤5,000円(税別)~ |
| 耐震診断について | 本建物は昭和56年6月1日以降に新築工事に着手されたものであるため、説明を省略させていただきます。 |
※[取引態様:仲介] 契約初期費用は、敷金・礼金・前家賃の他に、仲介手数料・火災保険料・鍵交換料・家賃保証料などが必要です。
家賃保証料は、初回保証料20,000円と月額保証料(賃料合計の1.5%)が必要です。学生契約の場合は、初回10,000円のみとなります。連帯保証人が必要です。
※[学生の方へ] 学生さんの契約(新入生並びに在校生、卒業生予定含む)の場合は仲介手数料の割引がございます。提携校の学生さんはさらに特別割引ありますので、詳しくはスタッフまでお問い合わせください。
家賃保証料は、初回保証料20,000円と月額保証料(賃料合計の1.5%)が必要です。学生契約の場合は、初回10,000円のみとなります。連帯保証人が必要です。
※[学生の方へ] 学生さんの契約(新入生並びに在校生、卒業生予定含む)の場合は仲介手数料の割引がございます。提携校の学生さんはさらに特別割引ありますので、詳しくはスタッフまでお問い合わせください。
あなたへのおすすめ
下記の物件もよく見られています













担当者より
坂之上郵便局まで徒歩3分☆JR坂之上駅まで徒歩6.5分☆国道225線にもアクセスしやすい物件です☆洗車しやすいように洗車ホースあります♪