玉里団地の戸建・3DKタイプです。
この画面のスクリーンショットを撮って
店舗でお見せください
店舗でお見せください
問合せコード34490-0002
| 所在地 | 鹿児島市玉里団地 | ||
|---|---|---|---|
| 家賃 | 50,000円 | ||
| 共益費他 | 不要 | ||
| 敷金/礼金 | 家賃の2ヶ月分/なし | ||
| 間取り | 3DK | 築年数 | 築50年 |
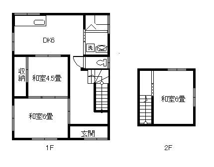
| 間取 | 1階・和6/和4.5/DK6/2階・和6 | ||
| 所在地 | 鹿児島市玉里団地 | ||
|---|---|---|---|
| 階層 | 2階建 | ||
| 家賃 | 50,000円 | ||
| 共益費他 | 不要 | ||
| 敷金 | 家賃の2ヶ月分 | ||
| 礼金 | なし | ||
| 間取り | 3DK | 築年数 | 築50年 |
| 間取内容 | 1階・和6/和4.5/DK6/2階・和6 | ||
初期費用の概算
| 家賃 | 50,000円 |
|---|---|
| 駐車料金 | 0円 |
| 敷金 | 100,000円 |
| 礼金 | 0円 |
| 家賃保証 | 25,000円 |
| 火災保険 | 25,500円 |
| 仲介手数料 | 55,000円 |
| 鍵交換料 | 13,200円 |
| 消火用具 | 5,500円 |
| サニタリーサービス | 30,800円 |
| 合計 | 305,000円 |
- ※別途保証会社費用など追加費用がかかる場合がございます。詳しくはお問い合わせください。
- ※火災保険の保険金額について・・・家財保障は500万円まで、修理費用保障は250万円まで、入居者賠償責任保障・個人賠償責任保障は2,000万円までの契約です。
- ※家賃保証料は、初回のみ賃料合計の50~100%が必要です。学生契約の場合は、初回10,000円のみとなります。
- ※インターネット設備はありません。(別途、お申込み・利用料が必要です。)
- ※サニタリーサービス・消火用具の金額は申込数などにより変動します。
駐車場込みの賃料です♪敷地内1台になります。お問い合わせは川商ハウス伊敷支店099-222-7100まで!
家賃・物件概要
設備情報
| 所在地 | 鹿児島市玉里団地 |
|---|---|
| 家賃 | 50,000円 |
| 共益費他 | 不要 |
| 敷金 | 家賃の2ヶ月分 | 礼金 | なし |
| 水道料 | 別途、実費となります |
| 階層 | 2階建 |
| 面積 | 60.0㎡ |
| 主要採光面 | 南向き |
| 駐車場 | 駐車場あり(無料) ・敷地内・平地(屋根なし)・※基本1台のみ(普通車・軽) |
| 駐輪場 | なし |
| 種別 | 一戸建 |
| 構造 | 木造 |
| ガス | 都市ガス(日本ガス 本社) |
| 築年 | 築50年 |
| 竣工 | 昭和50年3月 |
| 建物のポイント | 2沿線利用可、バス停徒歩3分以内 |
| 交通 | 市営バス 玉里団地1丁目西 徒歩3分 |
| 現況 | 空室 |
| 学校区 距離 |
坂元小学校まで1100m 坂元中学校まで900m |
| 建物に関する情報 | バス停近し(徒歩3分) |
|---|---|
| 室内に関する情報 | 角部屋、室内洗濯機置場あり |
| 浴室・トイレについて | 風呂トイレ別、独立洗面台 |
| セキュリティ/宅配BOX/郵便受種類等の有無 | 郵便ポストあり |
| エアコンの有無 | エアコンはついていません |
| ガス・暖房について | 給湯器:ガス給湯器 ガス種別:都市ガス |
| BS/CSアンテナ設備の有無 | BS/CS受信のためのアンテナなし |
| インターネット設備について | 無料設備無し インターネット利用には、別途、お申込み、調査、工事が必要です。 ※調査結果によっては、契約できない場合がございます。 |
| ペット飼育について | ペット飼育はできません(不可) |
| その他の情報 |
近隣の施設
- タイヨー玉里団地店まで 徒歩7分(550m)
- (株)南日本銀行 玉里支店まで 徒歩7分(550m)
- 鹿児島日当平郵便局まで 徒歩10分(750m)
- うちの幼稚園まで 徒歩7分(500m)
- ファミリーマートまで 徒歩8分(600m)
- 坂元小学校まで 徒歩14分(1100m)
- 坂元中学校まで 徒歩12分(900m)
火災保険・手数料・その他
| 火災保険 | 入居者様の家財道具に対して火災保険にご加入いただく必要がございます。その際の火災保険料は入居者様ご負担となります。(入居時に2年分一括払い、以降2年ごと更新手続きが必要となります) |
|---|---|
| 仲介手数料 | ご契約に当たっては仲介手数料が必要となります。 仲介手数料は家賃の1カ月分+消費税となっております。 |
| 契約更新事務手数料について | 契約期間は原則2年間です。2年毎に契約更新事務手数料が必要になる場合がございます。詳しくはスタッフまでお問い合わせください。 |
※[取引態様:仲介] 契約初期費用は、敷金・礼金・前家賃の他に、仲介手数料・火災保険料・鍵交換料・家賃保証料などが必要です。
家賃保証料は、初回のみ賃料合計の50~100%が必要です。学生契約の場合は、初回10,000円のみとなります。
※[学生の方へ] 学生さんの契約(新入生並びに在校生、卒業生予定含む)の場合は仲介手数料の割引がございます。提携校の学生さんはさらに特別割引ありますので、詳しくはスタッフまでお問い合わせください。
家賃保証料は、初回のみ賃料合計の50~100%が必要です。学生契約の場合は、初回10,000円のみとなります。
※[学生の方へ] 学生さんの契約(新入生並びに在校生、卒業生予定含む)の場合は仲介手数料の割引がございます。提携校の学生さんはさらに特別割引ありますので、詳しくはスタッフまでお問い合わせください。
あなたへのおすすめ
下記の物件もよく見られています












担当者より
玉里団地の戸建です♪落ち着く和室3部屋です♪