問合せコード5706-001F
| 物件名 | GRANVERDE UENOSONO | ||
|---|---|---|---|
| 所在地 | 鹿児島市上之園町 | ||
| 家賃 | 198,000円 | ||
| 共益費他 | 不要 | ||
| 敷金/礼金 | 家賃の2ヶ月分/なし | ||
| 間取り | テナント | 築年数 | 築44年 |
| 用途 | |||
| 物件名 | GRANVERDE UENOSONO | ||
|---|---|---|---|
| 所在地 | 鹿児島市上之園町 | ||
| 家賃 | 198,000円 | ||
| 共益費他 | 不要 | ||
| 敷金/礼金 | 家賃の2ヶ月分/なし | ||
| 間取り | テナント | 築年数 | 築44年 |
| 用途 | |||
事務所やカフェ等の軽飲食までの飲食店は相談可能です 入居月はフリーレント可能です
家賃・物件概要
設備情報
| 物件名 | GRANVERDE UENOSONO |
|---|---|
| 所在地 | 鹿児島市上之園町 |
| 家賃 | 198,000円 |
| 共益費他 | 不要 |
| 敷金/礼金 | 家賃の2ヶ月分/なし |
| 水道料 | 別途、実費となります |
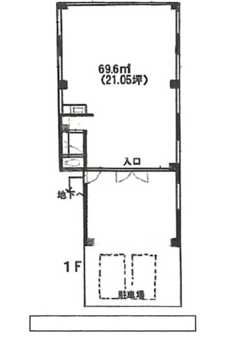
| 階層 | 5階建の1階部分 |
| 面積 | 69.6㎡ |
| 主要採光面 | |
| 駐車場 | 駐車場あり(無料) ・敷地内・平地(屋根なし) |
| 〃 2台目 | 駐車場2台目あり(無料)・敷地内・平地(屋根なし) |
| 駐輪場 | なし |
| 種別 | マンション |
| 構造 | 鉄筋コンクリート造 |
| エレベータ | なし |
| 業種 | |
| 飲食店への用途 | 要相談 |
| その他用途可能な業種 | 事務所、物販店舗、美容院、学習塾、エステ、病院 |
| 築年 | 築44年 |
| 竣工 | 昭和56年10月 |
| 建物のポイント | 2沿線利用可、駅徒歩9分以内、バス停徒歩3分以内、耐火構造、当社管理物件 |
| 交通 | 市営バス 高麗町 徒歩3分 鹿児島市電1系統 新屋敷電停 徒歩9分 JR鹿児島本線 鹿児島中央 徒歩11分 JR最寄駅:鹿児島中央駅まで 850m |
| 現況 | 空室 |
| 建物情報 | 鉄筋コンクリート、バス停近し |
|---|---|
| 室内情報 | 専用キッチン、コンロありません |
| 給湯室 | |
| トイレ | 専用トイレ |
| 照明器具 | ありません |
| フロア | |
| 袖看板 | |
| 浴室 | 浴室ありません、洗面台ありません |
| セキュリティ/宅配BOX/郵便受種類の有無 | 郵便ポストあり |
| エアコン | ありません |
| ガス | 給湯器:ガス給湯器 ガス:あり ガス種別:都市ガス |
| BS/CSアンテナ・インターネット | BS/CS受信のためのアンテナなし お申込み・利用料が必要となります |
| その他 | 24時間管理 |
近隣の施設
- 日本銀行まで 徒歩4分(280m)
- 共研公園まで 徒歩4分(250m)
- 甲南高等学校まで 徒歩5分(360m)
- 鹿児島中央駅まで 徒歩11分(850m)
- ファミリーマートまで 徒歩1分(50m)
その他
※[取引態様:仲介] 契約初期費用は、敷金・礼金・前家賃の他に、仲介手数料・火災保険料・鍵交換料・家賃保証料などが必要です。
家賃保証料は、賃料合計の100%が必要です。
家賃保証料は、賃料合計の100%が必要です。
あなたへのおすすめ
下記の物件もよく見られています














担当者より
事務所やカフェ等の軽飲食までの飲食店は相談可能です 駐車場は縦列2区画の合計で4台駐車可能 入居月はフリーレント可能です