即入居可 ☆軽飲食相談可
問合せコード37420-0101
| 物件名 | フォレストⅢ | ||
|---|---|---|---|
| 所在地 | 鹿児島市松原町 | ||
| 家賃 | 160,000円 | ||
| 共益費他 | 不要 | ||
| 敷金/礼金 | 家賃の2ヶ月分/家賃の1ヶ月分 | ||
| 間取り | テナント | 築年数 | 築3年 |
| 用途 | |||
| 物件名 | フォレストⅢ | ||
|---|---|---|---|
| 所在地 | 鹿児島市松原町 | ||
| 家賃 | 160,000円 | ||
| 共益費他 | 不要 | ||
| 敷金/礼金 | 家賃の2ヶ月分/家賃の1ヶ月分 | ||
| 間取り | テナント | 築年数 | 築3年 |
| 用途 | |||
家賃・物件概要
設備情報
| 物件名 | フォレストⅢ |
|---|---|
| 所在地 | 鹿児島市松原町 |
| 家賃 | 160,000円 |
| 共益費他 | 不要 |
| 敷金/礼金 | 家賃の2ヶ月分/家賃の1ヶ月分 |
| 水道料 | 別途、実費となります |
| 階層 | 9階建の1階部分 |
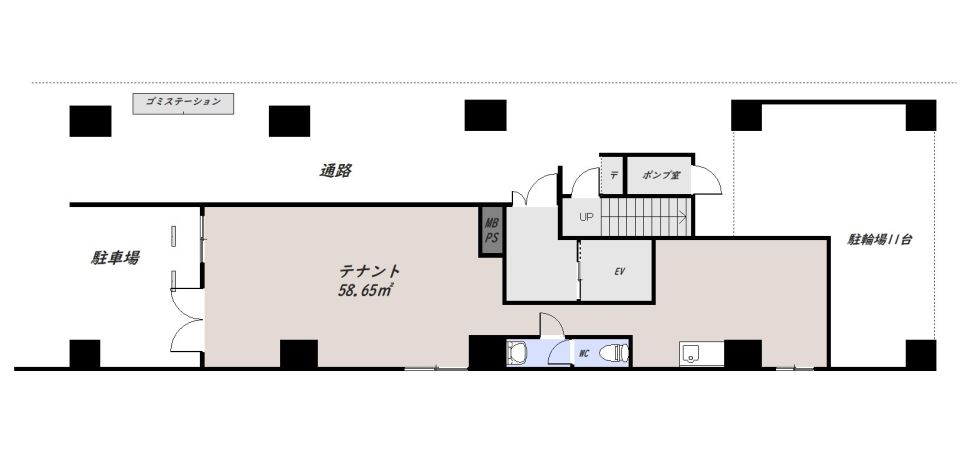
| 面積 | 58.7㎡ |
| 主要採光面 | 西向き |
| 駐車場 | 駐車場あり(無料) ・敷地内・平地(屋根あり) |
| 駐輪場 | あり |
| 種別 | マンション |
| 構造 | 鉄筋コンクリート造 |
| エレベータ | あり |
| 業種 | |
| 飲食店への用途 | 不可 |
| その他用途可能な業種 | 事務所、物販店舗、美容院、学習塾、エステ、病院 |
| 築年 | 築3年 |
| 竣工 | 令和5年1月 |
| 建物のポイント | 2沿線利用可、駅徒歩9分以内、バス停徒歩3分以内、耐火構造、デザイナーズ、エレベーター、宅配ボックス、敷地内ごみ置き場、築5年以内、駐輪場、バイク置場、オートロック、当社管理物件 |
| 交通 | 市営バス ぼさど 徒歩2分 鹿児島市電2系統 天文館通電停 徒歩9分 JR鹿児島本線 鹿児島中央 徒歩27分 |
| 現況 | 空室 |
| 建物情報 | 鉄筋コンクリート、駐輪場、バス停近し |
|---|---|
| 室内情報 | 角部屋、コンロありません |
| 給湯室 | |
| トイレ | 専用トイレ |
| 照明器具 | ありません |
| フロア | |
| 袖看板 | |
| 浴室 | 浴室ありません、洗面台ありません |
| セキュリティ/宅配BOX/郵便受種類の有無 | 防犯カメラ、オートロック、宅配ボックス |
| エアコン | ありません |
| ガス | 給湯器:ガス給湯器 ガス:あり ガス種別:都市ガス |
| BS/CSアンテナ・インターネット | BS/CSアンテナ設置あり お申込み・利用料が必要となります |
| その他 | 24時間管理、即入居可 |
近隣の施設
- マルヤガーデンズまで 徒歩6分(450m)
- センテラス天文館まで 徒歩8分(600m)
- タイヨー銀座店まで 徒歩3分(240m)
- ドラッグイレブンいづろ店まで 徒歩7分(560m)
- ローソン 鹿児島松原町店まで 徒歩2分(120m)
その他
※[取引態様:仲介] 契約初期費用は、敷金・礼金・前家賃の他に、仲介手数料・火災保険料・鍵交換料・家賃保証料などが必要です。
家賃保証料は、賃料合計の100%が必要です。
家賃保証料は、賃料合計の100%が必要です。
あなたへのおすすめ
下記の物件もよく見られています















担当者より
美容系や医療系(歯科や整体など)、軽飲食相談可