洗車ホース☆
2018年01月13日
皆様こんにちは☆
本日ご紹介します物件は、洗車しやすいように洗車ホースがあります物件です!!
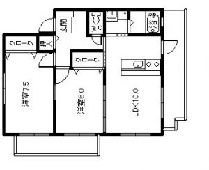
今回ご紹介させていただきますお部屋は、2LDKです☆
温水洗浄便座、TVモニター付きインターフォン、追い炊き機能など設備が充実してます!!
2階の角部屋のご紹介で、眺望も良好です☆
また、私個人的には、収納も魅力ですよ!!
またこちらのお部屋の他には、
宇宿エリアの2LDK プライムユー
中山エリアの2LDK吉満ハイツ
谷山中央エリアの2LDK WINDIA NV・1
坂之上エリアの2LDK 錫山ハイツ
など、仲介手数料0円キャンペーンなどもあります!
お部屋探しは川商ハウスへ!!!!!!!!!




