オープンルーム開催のお知らせ 【5/28・5/29】
2022年05月27日
5月28日(土)、5月29日(日)の2日間、
JGMヴェルデ武南805号にてオープンルームを開催致します。
住所:鹿児島市田上6丁目20-17
時間:午前11時から午後4時まで
現地へ直接お越しください。ご来場予約は必要ありません。
当社社員が現地にてご案内致します。
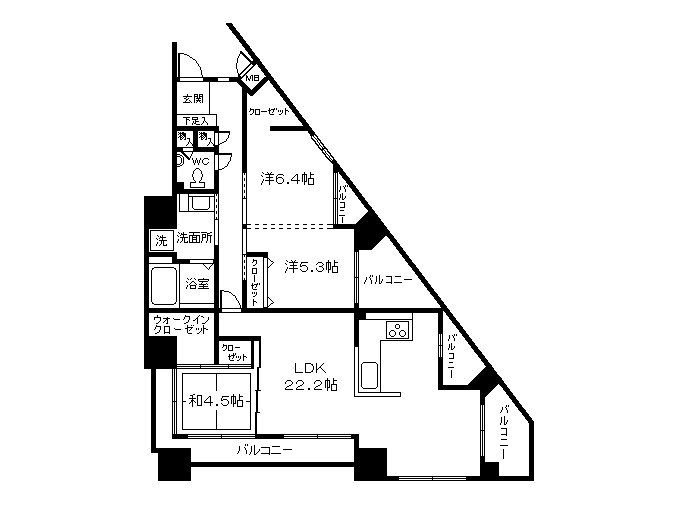
間取り 3LDK
販売価格 2,380万円
最上階の8階部分、東南向きの角部屋です。
3面バルコニーで日当たり、眺望が良いです。
LDKは広々22.2帖あります。
平成25年月不詳に、4LDKから3LDKに間取り変更し、
フルリフォーム(キッチン、浴室、トイレ交換、
クロス張替え等)しています。
タイヨー田上店まで約350m(徒歩5分)
鹿児島銀行田上支店まで約400m(徒歩5分)
田上小学校まで約370m(徒歩5分)
ご家族お揃いでお気軽にお越しください。
物件の詳細はこちら
お問い合わせは 本店不動産売買部 099-225-8888 まで





