エアコン4台!!リノベ★3LDK
2022年06月27日
川商ハウス 中央駅前店より
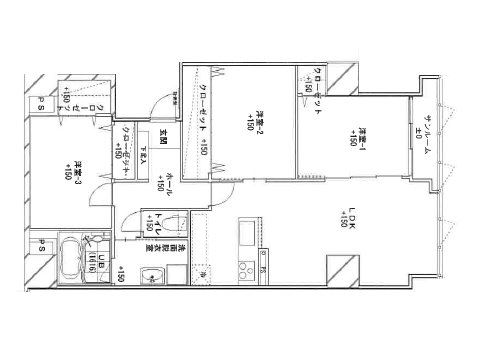
武1丁目にあります3LDKのリノベROOMのご紹介です。
鹿児島中央駅まで徒歩5分の位置にある
【田中ビル(武1丁目)】
今回3LDKのお部屋をリノベーションし
設備充実のマンションに仕上がりました。

対面式のキッチンは、3口コンロ付きで
アクセントクロスを使用しおしゃれな空間に。
各居室エアコンが設置しており、計4台のエアコンが設置済
小さいお子様から、独立したお子様でも使いやすい
間取りとなっております。

他にもおすすめポイントがたくさんあります!
詳細は当社HPをご覧ください。HPはこちら
お問合せは


