眼望良好
錦江湾望む
陽当り良好
小学校まで平坦
この画面のスクリーンショットを撮って
店舗でお見せください
店舗でお見せください
問合せコード34958-1307
| 種別 | 売マンション | ||
|---|---|---|---|
| 物件名 | シーサイドパーク小川 | ||
| 所在地 | 鹿児島市小川町 | ||
| 価格 | 1,980万円 | ||
| 管理費1 | 6,100円 | ||
| 修繕積立金 | 11,800円 | ||
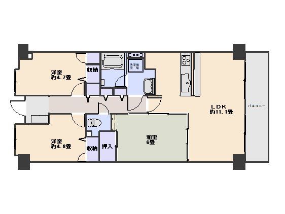
| 間取り | 3LDK | 築年 | 1996/01 |
| 種別 | 売マンション | ||
|---|---|---|---|
| 物件名 | シーサイドパーク小川 | ||
| 所在地 | 鹿児島市小川町 | ||
| 価格 | 1,980万円 | ||
| 構造 | 鉄骨鉄筋コンクリート造 | ||
| 階層 | 14階建 | ||
| 管理費 | 6,100円 | ||
| 修繕積立金 | 11,800円 | ||
| 間取り | 3LDK | 築年 | 1996/01 |
小川町にある3LDKのマンションです。徒歩圏内にスーパーやコンビニがあり、市役所や鹿児島駅も近く利便性が高いです。事前予約で内見できますのでよろしくお願いいたします。
物件概要
設備情報
| 建物名 | シーサイドパーク小川 |
|---|---|
| 用途地域 | 商業地域 |
| 土地面積 | 2,295.70㎡ (694.44坪) |
| 専有面積 | 60.67㎡ (18.35坪) |
| 構造 | 鉄骨鉄筋コンクリート造 |
| 階層 | 14階建の13階部分 |
| 竣工 | 1996/01/31 (築29年10ヶ月) |
| 管理形態 | 管理会社へ委託 (管理人日勤) |
| 管理費 | 6,100円 |
| 修繕積立金 | 11,800円 |
| 駐車場 | なし |
| 空調 | エアコンつき |
| ガス | 都市ガス |
| 給湯器 | ガス給湯器 |
| 現況 | 空室 |
| 取引態様 | 仲介 |
| 建物情報 | エレベーター、JR駅近し(徒歩5分以内) |
|---|---|
| 室内情報 | システムキッチン、室内洗濯機置場 |
| 浴室・トイレ | 洗浄機能付き温水便座、洗面台、浴室乾燥機 |
| セキュリティ/宅配BOX/郵便受種類 | インターフォン(音声)、オートロック、郵便ポストあり |
| エアコン | あり |
| ガス・暖房 | 給湯器:ガス給湯器 暖房:エアコン ガス種別:都市ガス |
| BS/CSアンテナ・インターネット | BSアンテナなし |
| その他 |
近隣の施設
- 学校法人鹿児島竜谷学園 和光幼稚園まで 徒歩13分(1000m)
- スーパーセンターニシムタ 北ふ頭店まで 徒歩2分(100m)
- 鹿児島銀行 上町支店まで 徒歩2分(150m)
- 上町いまきいれ病院まで 徒歩6分(450m)
- ローソンまで 徒歩3分(約240m)
- 名山小学校まで 徒歩10分(800m)
- 長田中学校まで 徒歩4分(290m)
あなたへのおすすめ
下記の物件もよく見られています














担当者より
小川町にある3LDKのマンションです。徒歩圏内にスーパーやコンビニがあり、市役所や鹿児島駅も近く利便性が高いです。事前予約で内見できますのでよろしくお願いいたします。