閑静な住宅地
小学校まで平坦
太陽光発電システム
土地50坪以上
この画面のスクリーンショットを撮って
店舗でお見せください
店舗でお見せください
問合せコード35195-0000
| 種別 | 売家 | ||
|---|---|---|---|
| 物件名 | 下福元町 築浅 平屋 | ||
| 所在地 | 鹿児島市下福元町 | ||
| 価格 | 2,580万円 | ||
| 土地面積 | 173.49㎡ (52.48坪) | ||
| 建物面積 | 77.01㎡ (23.29坪) | ||
| 構造 | 木造 | ||
| 階層 | 1階建 | ||
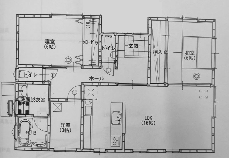
| 間取り | 3LDK | 築年 | 2018/05 |
| 種別 | 売家 | ||
|---|---|---|---|
| 物件名 | 下福元町 築浅 平屋 | ||
| 所在地 | 鹿児島市下福元町 | ||
| 価格 | 2,580万円 | ||
| 土地面積 | 173.49㎡ (52.48坪) | ||
| 建物面積 | 77.01㎡ (23.29坪) | ||
| 構造 | 木造 | ||
| 階層 | 1階建 | ||
| 間取り | 3LDK | 築年 | 2018/05 |
築浅平屋、オール電化住宅、太陽光8.5KWで売電収入有り。
物件概要
設備情報
| 建物名 | 下福元町 築浅 平屋 |
|---|---|
| 用途地域 | |
| 容積率 | 80% |
| 建ぺい率 | 50% |
| 土地面積 | 173.49㎡ (52.48坪) |
| 建物面積 | 77.01㎡ (23.29坪) |
| 構造 | 木造 |
| 階層 | 1階建 |
| 竣工 | 2018/05/16 (築7年10ヶ月) |
| 間取内容 | LDK16/洋6/3/和6 |
| 駐車場 | あり |
| 空調 | なし |
| 電気 | オール電化 |
| 給湯器 | 電気温水器 |
| 現況 | 入居中 |
| 取引態様 | 仲介 |
| 接道状況 | 私道 公衆用道路 接道幅員:約2m 接道面長:約10m 接道方角:南 |
| 私道面積 | 130.00㎡ (持分:53/130分) |
| 建物情報 | |
|---|---|
| 室内情報 | システムキッチン、IHクッキングヒーター、室内洗濯機置場 |
| 浴室・トイレ | 洗浄機能付き温水便座、洗面台、浴室乾燥機 |
| セキュリティ/宅配BOX/郵便受種類 | TVモニター付きインターフォン、郵便ポストあり |
| エアコン | ありません |
| ガス・暖房 | 給湯器:電気温水器 ガス種別:オール電化 |
| BS/CSアンテナ・インターネット | BSアンテナなし |
| その他 |
近隣の施設
- 錦江台小学校まで 徒歩5分(400m)
- 和田中学校まで 徒歩28分(2200m)
あなたへのおすすめ
下記の物件もよく見られています





担当者より
築浅平屋、オール電化住宅、太陽光8.5KWで売電収入有り。